Immeuble avec permis d´hébergement local

Lisboa, Lisboa

Immeuble avec permis d´hébergement local
Retour\Immeuble avec permis d´hébergement local - Lisboa, Lisboa
Envoyer la propriété à un ami
Savoir plus »
captcha
Champs obligatoires *
Seguir imóvel Receba um alerta quando existir uma Baixa de Preço
Nom
Insérer le code de l'image
captcha
Code
Immeuble avec permis d´hébergement local 1.270.000 € Ref: DH757
10
4
186 m²
186 m²
336 m²
Immeuble avec permis d´hébergement local

Un immeuble historique, très lumineux, ensoleillé et bénéficiant d´une excellente exposition au soleil, est situé dans la paroisse dynamique d´Arroios. Il offre une opportunité unique aux investisseurs et aux familles à la recherche d´un projet de rénovation à fort potentiel.

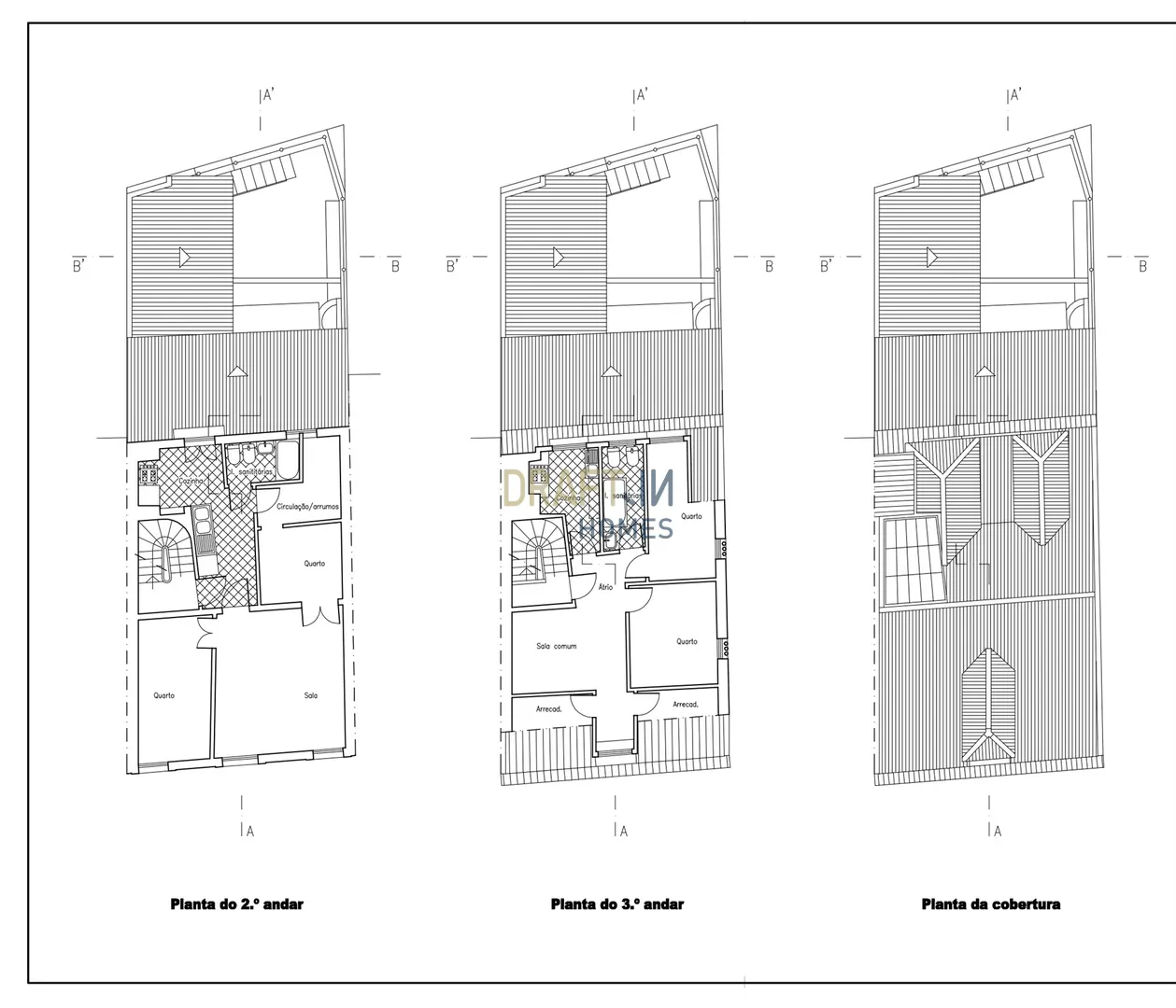
L´immeuble de 336 m², composé de quatre logements indépendants, en pleine propriété, est situé entre Campo Mártires da Pátria et l´Av.

Le rez-de-chaussée, d´une superficie de 118 m², comprend 3 chambres, un salon, une cuisine, une buanderie, des toilettes et un patio extérieur.

Le rez-de-chaussée, d´une superficie de 98 m², comprend 3 chambres, un salon, une salle à manger, une cuisine, des toilettes et un patio extérieur.

Le 2e étage, d´une superficie de 65 m², comprend 2 chambres, un salon, une cuisine, une buanderie et des toilettes.

Le 3e étage, d´une superficie de 55 m², comprend 2 chambres, un salon, une cuisine et une salle de bains.

À propos de Draft In Homes :

Fait partie du groupe DRAFT IN, où vous trouverez toutes les solutions pour la construction, l´immobilier et le financement.

DRAFT-IN HOMES fait partie d´une équipe de conseillers immobiliers expérimentés, qui vous accompagnent pour l´achat ou la vente d´un bien immobilier et vous offrent un accompagnement personnalisé.

DRAFT-IN Projetos e Construção fait partie d´une équipe multidisciplinaire, forte d´une vaste expérience dans tous les domaines de l´architecture et de la construction, composée d´architectes, d´ingénieurs et de personnel spécialisé, afin de garantir des normes de qualité élevées dans des solutions intégrées, notamment « clé en main ».

DRAFT IN FINANCE aide les entreprises à obtenir un financement plus rapidement et avec des solutions plus avantageuses.
Type de propriété Immeuble
Typologie 10 Chambres
Objectif Vente
Etat Ancien
Prix 1.270.000 €
Année de construction N/D
Pays Portugal
Département Lisboa
Ville Lisboa
Lieu Arroios
Zone N/D
Celeste Aguiar
Celeste Aguiar
chamada para rede móvel nacional
Je veux être contacté(e)
Date
Time
Nom
Contact
Message
captcha
Code
Caractéristiques générales
Général
  •  
Pièces
Pièces Lieu Étage Murs Plafonds Commentaires
 
Environnement
  •  
Commodités
  •  
Domotique
  •  
Energies Renouvelables
  •  
Emplacement de la Propriété
Nous sommes à votre disposition pour vous aider Je veux être contacté(e)
Date
Time
Nom
Contact
Message
captcha
Code
O que é a pesquisa responsável
Esta pesquisa permite obter resultados mais ajustados à sua disponibilidade financeira.