€
EUR
Who are we
Properties
Developments
Want to sell
Recruitment
Contacts
Agencies
More
Who are we
Properties
Developments
Want to sell
Recruitment
Contacts
Agencies
0
0
3+1-Bedroom House with Pool and Garage
Faro, Portimão
Back
\
3+1-Bedroom House with Pool and Garage - Faro, Portimão
Share Property
Facebook
X
Pinterest
WhatsApp
Copy link
Link copiado
Print sheet
Send property to a friend
Insert a name
Insert an email
Enter a valid email address
Insert a name
Insert an email
Enter a valid email address
I have read and agree to the terms and conditions set forth.
Know more »
To finish this operation you should read and agree with our conditions.
Required fields *
Send
Photos
Videos
Plans
Virtual Tour
Seguir imóvel
Price Reduction
Seguir imóvel
Receba um alerta quando existir uma Baixa de Preço
Name
Insira o seu Nome
E-mail
Enter your email
Enter a valid email address
Li e aceito a
Privacy Policy
To finish this operation you should read and agree with our conditions.
Insert the code from the image
Code
Send
3+1-Bedroom House with Pool and Garage
720.000 €
Ref:
DHA073
3
3
2
315 m²
315 m²
226 m²
1130 m²
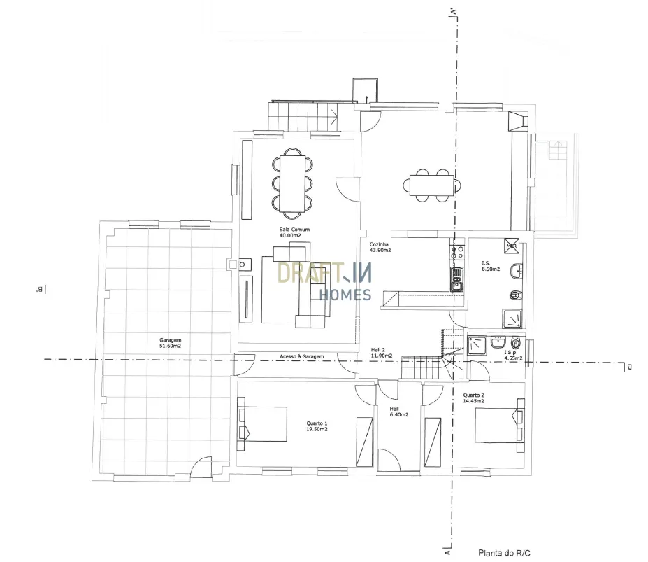
Monte Canelas — Spacious 3+1-Bedroom House on a 1,130.00 m2 Lot
Imagine waking up in a haven where the silence is often interrupted only by birdsong and the warm Algarve breeze. This house in Monte Canelas, in the municipality of Portimão, is exactly that: a home designed for families seeking quality of life, generous outdoor space, privacy, and comfort without sacrificing proximity to the region´s best beaches and services.
The entrance welcomes you with a cozy hall that leads to the open-plan living areas—kitchen, dining room, and living veranda—spacious and south-facing to ensure natural light throughout the day and a direct connection to the outdoor area and pool. The living room, with high ceilings, creates a feeling of spaciousness and sophistication, ideal for relaxing, reading, or socializing.
Bedrooms and Privacy
On the ground floor, there are two bedrooms, one en suite, designed for guests, children, or those who prefer to avoid stairs in their daily lives. On the first floor, another suite offers a generous walk-in closet and private bathroom—a true personal retreat. An adjacent office provides a dedicated space for teleworking or studying, with access to a private terrace for breathing fresh air and enjoying a cup of coffee at sunrise.
Outdoors and Leisure
The nearly 1,200.00 m² lot invites you to live outdoors: well-kept gardens, circulation areas, and leisure areas designed for all ages. The salt-treated pool, heated by a heat pump, allows you to enjoy comfortable swimming for many months of the year—a luxury that transforms family gatherings into unforgettable memories. Next door, a porch with a barbecue grill creates the perfect setting for al fresco lunches and long evenings of conviviality.
Convenience and Sustainability
The property combines comfort and practical technology: all blinds are electric, providing convenience and security; the box garage has capacity for two vehicles and offers additional storage space. Additionally, there is a carport with an automatic gate that allows for convenient and safe parking of two more vehicles—a perfect solution for families with more than one car or for visitors.
The focus on efficiency and resource management translates into a technical area in the basement, dedicated to the solar panel system and pool maintenance, and a 2,500-liter cistern dedicated exclusively to harvesting rainwater for irrigation—an automatic system that keeps the garden well-maintained with minimal intervention.
Living in the Algarve: Undeniable Advantages
Choosing the Algarve means choosing a lifestyle that balances quality family time, a mild climate, and a unique cultural and leisure offering. Monte Canelas offers the serenity of the countryside without being far from amenities: Portimão is about 10 minutes away, and the nearest beaches are approximately 15 minutes away—so daily routines and beach weekends coexist in perfect harmony. The region is renowned for its gastronomy, outdoor activities (golf, seaside walks, hiking), and welcoming international community—ideal for foreign families looking to integrate and put down roots in Portugal.
Why this home?
Because it´s a project ready to accommodate a family that values space, privacy, and technical comfort; because the heated, salt-treated pool is a true differentiator; because the combination of a garage, spacious living areas, and an outdoor leisure area adds an extra quality to your family´s daily life; and because a cistern with automatic irrigation translates economy and sustainability into a practical gesture that simplifies maintenance.
Main features (summary)
House renovated in 2013, with a functional design and selected finishes;
Land measuring nearly 1,200 m², with a well-established garden and leisure areas;
Salt-water-treated swimming pool heated by a heat pump;
Two-car garage plus a carport for two more with an automatic gate;
Fully electric blinds;
2,500 L rainwater cistern with automatic irrigation;
Basement with a technical area for solar panels and maintenance;
Open-plan living areas, facing south, with direct access to the outside.
This house is more than just a property: it promises a more peaceful lifestyle, with space for children to run around, outdoor dining, and long weekends in the countryside or at the beach. If you´re looking to establish your family in the Algarve with comfort, security, and a high quality of life, come see this house in Monte Canelas—we´ll leave the rest to your imagination. Contact us for a personalized tour.
Property Type
Detached house
Typology
3 Bedrooms
Objective
Sell
Condition
Used
Price
720.000 €
Year of Construction
2013
Country
Portugal
District
Faro
County
Portimão
Parish
Mexilhoeira Grande
Zone
N/A
João Velosa
+351 961 633 286
Chamada para a rede móvel nacional
I want to be contacted
Date
Time
Name
Insert a name
E-mail
Insert an email
Enter a valid email address
Contact
Enter your phone contact
Message
I request more information, without any commitment, about the property DHA073
I have read and agree to the terms and conditions set forth.
Privacy Policy
To finish this operation you should read and agree with our conditions.
Code
Insert the code shown in the image.
Send
General Features
General
Rooms
Rooms
Area
Floor
Walls
Ceilings
Comments
Surroundings
Facilities
Domotic System (Home automation)
Renewable Energy
Property Location
See too
Faro, Portimão
760.000 €
Contemporary 3-bedroom house under construction
760.000 €
Contemporary 3-bedroom house under construction
Faro, Portimão
3
3
1
349 m²
A. Bruta
255 m²
A. Bruta Privada
211,93 m²
A. Useful
190 m²
A. Land
Contactar
Faro, Portimão
1.150.000 €
Detached 4+1-bedroom house in Portimão
1.150.000 €
Detached 4+1-bedroom house in Portimão
Faro, Portimão
4
7
5
691,3 m²
A. Bruta
316 m²
A. Bruta Privada
316 m²
A. Useful
630 m²
A. Land
Contactar
More properties +
We are available to help you
I want to be contacted
Date
Time
Name
Insert a name
E-mail
Insert an email
Enter a valid email address
Contact
Insert your contact details
Message
Li e aceito a
Privacy Policy
To finish this operation you should read and agree with our conditions.
Code
Insert the code shown in the image.
Send
O que é a pesquisa responsável
Esta pesquisa permite obter resultados mais ajustados à sua disponibilidade financeira.